РЕСУРС
Строительная компания
ПРОЕКТЫ
      В данном разделе мы представляем вам план-схемы готовых домов.  Ознакомиться с ними  можете ниже на рисунках.
Рис. 1. Проект  домов, расположенных по адресу: г. Горно-Алтайск, ул. 232 Стрелковой дивизии, д. 4 и ул. М.С. Евдокимова, д. 17.
1 Комната
2
Санитарный узел
3
Комната
4
Зал
5
Кухня
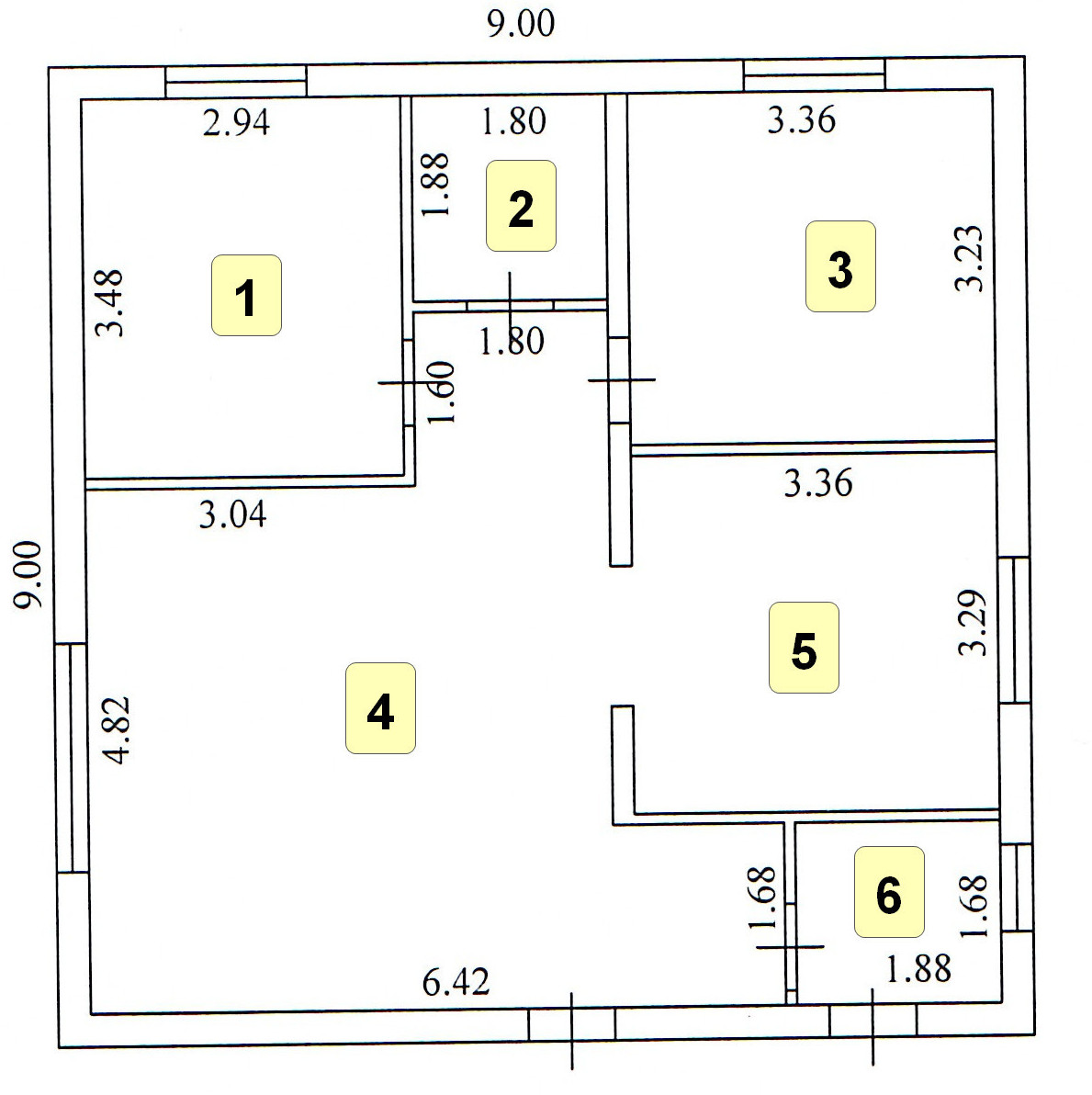
Рис. 2. Проект дома, расположенного по адресу:
с. Алфёрово, ул. Юбилейная, д. 15

1 Комната
2
Санитарный узел
3
Комната
4
Зал
5
Кухня
6 Котельная
ООО "Ресурс" ИНН 0400022175 КПП 040001001  ОКАТО 84215830001